Wir sind die HKV Herzfelder Kreislaufwirtschafts- und Verwertungs GmbH in Rüdersdorf-Herzfelde bei Berlin. Seit 1992, also schon seit 30 Jahren, arbeiten wir und unsere Gesellschafter hier vor Ort.
Unter anderem fördern wir aus den Tongruben in Herzfelde Rohstoffe und wollen diese nach vollständiger Ausschöpfung mit mineralischen Stoffen aus der regionalen Bauindustrie auffüllen, um so ein Absacken des Bodens der umliegenden Gebiete zu verhindern.
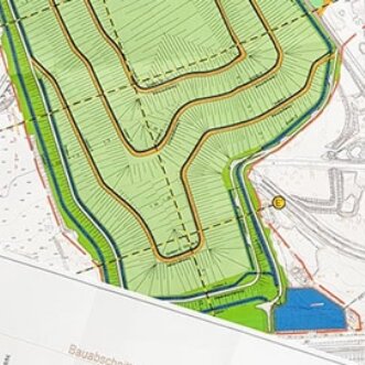
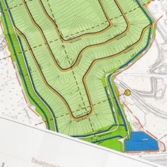
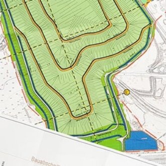
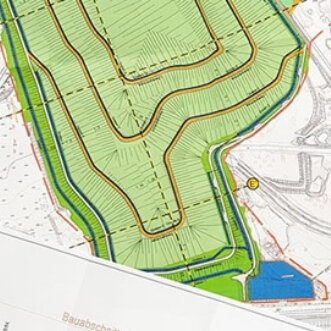
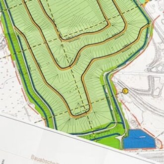
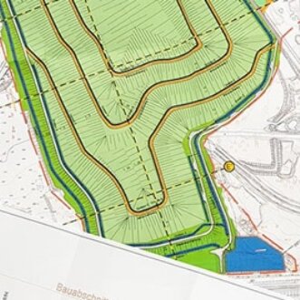
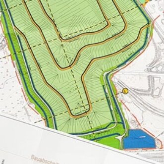
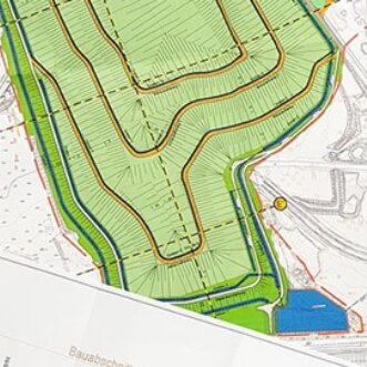
Unser Ziel ist es, durch die Renaturierung einen Mehrwert für die Gemeinde zu schaffen. Mit dem Natur- und Freizeitpark Herzfelde entsteht ein neuer Bezugspunkt für Bürgerinnen und Bürger aller Altersgruppen.
Der Natur- und Freizeitpark Herzfelde ist mehr als nur die Wiederherstellung und Weiterentwicklung einer ehemaligen Tagebaufläche. Es ist eine große Chance, das Gebiet zwischen Herzfelde und Hennickendorf für die Natur und uns alle als Erholungsgebiet zurückzugewinnen.

Durch die Renaturierung der Tagebauflächen wird Herzfelde grüner. Aus den ehemaligen Tongruben entsteht ein Naherholungsgebiet, in dem Pflanzen und Tiere ein Stück Lebensraum zurückgewinnen.

Der Natur- und Freizeitpark Herzfelde spiegelt die Tontagebaugeschichte in Herzfelde wider. Exkursionen für Schüler und andere Interessierte ermöglichen einen spannenden Einblick in die lokale Historie. Info-Pavillons, Informationsstelen und Gebietsführungen laden zu einem informativen Abstecher ein.

Entspannendes Spazierengehen, Mountainbike-Abenteuer, eine Himmelstreppe und ein Aussichtsturm – der Natur- und Freizeitpark Herzfelde bietet Freizeitmöglichkeiten für die ganze Familie. Mehr noch: Vom „Rüdi“, einem Aussichtsturm auf dem geplanten Berg, haben Besucher später einen atemberaubenden Fernblick.

Auf dem renaturierten Areal ist auch ein Aufbau von Solaranlagen möglich. So erschließen sich für unsere anliegenden Orte, Betriebe und Infrastruktur erneuerbare Energiequellen, die gemeinsam genutzt werden können.
In unserem FAQ-Bereich finden Sie erste Antworten. Viel Spaß beim Lesen.

Bestellen Sie unseren kostenfreien Newsletter für aktuelle Informationen rund um das Projekt Natur- und Freizeitpark Herzfelde
und über unser Unternehmen. Das Abbestellen ist jederzeit möglich.